15/09/2025

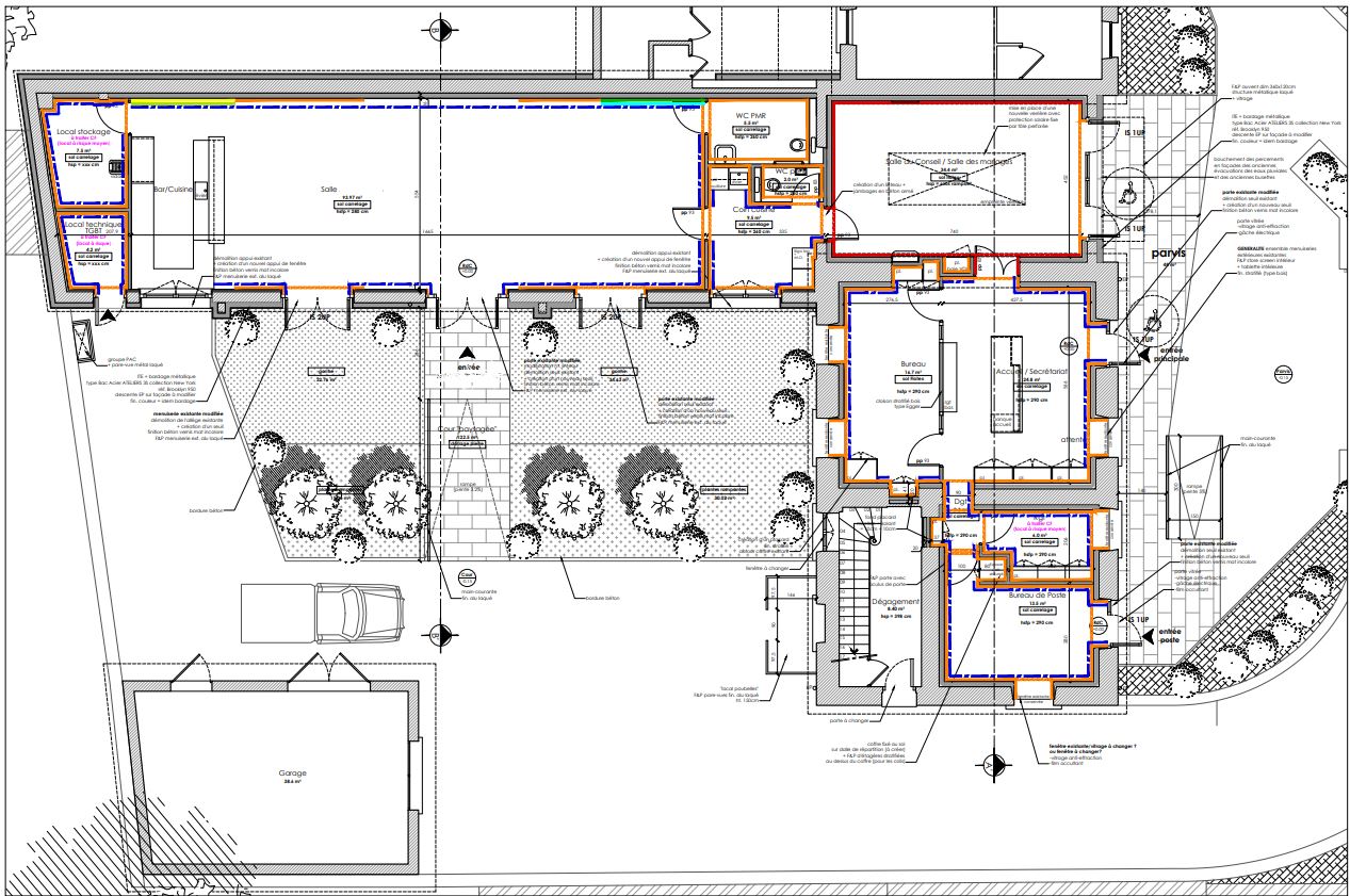
Au mois de novembre débuteront les travaux de rénovation énergétique et la réhabilation de la mairie ainsi que l'ancienne salle des Fêtes - locaux du P'tit Brens. A la demande de certains, veuillez trouvez en pièces-jointes les plans de façades et le plan de masse du projet.

plan masse.JPG
Projet façade EST.JPG
Projet façade SUD.JPG